4 Bedroom
2 Bathroom
1070 sqft
Bi-Level
Central Air Conditioning
Forced Air
Landscaped
$429,900
This beautifully maintained bi-level home on Tartan Circle offers an unbeatable location with a massive park right across the street and shopping just minutes away. Inside, you’ll find a great layout featuring four bedrooms and two full bathrooms. The home has been meticulously cared for with significant recent investments, including new main-floor windows installed in 2024, shingles in 2021, new decking in 2025, and more, (ask your REALTOR® for the list). The backyard is fenced and landscaped with underground sprinklers, a gas fire pit, and that freshly updated covered deck. For those with recreational vehicles, the fenced yard includes an oversized sliding gate for easy trailer or RV storage (fire pit would need to be moved). There is also an insulated and heated attached garage, and the front driveway has parking for two additional vehicles. This move-in-ready home offers the rare combination of a quiet, scenic location and total peace of mind for the next owner. Book a showing with a REALTOR® or check out the open house on Saturday, February 21st, from 1-3pm. (id:28267)
Property Details
|
MLS® Number
|
A2283989 |
|
Property Type
|
Single Family |
|
Community Name
|
West Highlands |
|
Amenities Near By
|
Park, Playground, Schools, Shopping |
|
Parking Space Total
|
3 |
|
Plan
|
0611084 |
|
Structure
|
Deck |
Building
|
Bathroom Total
|
2 |
|
Bedrooms Above Ground
|
2 |
|
Bedrooms Below Ground
|
2 |
|
Bedrooms Total
|
4 |
|
Appliances
|
See Remarks |
|
Architectural Style
|
Bi-level |
|
Basement Development
|
Finished |
|
Basement Type
|
Full (finished) |
|
Constructed Date
|
2006 |
|
Construction Style Attachment
|
Detached |
|
Cooling Type
|
Central Air Conditioning |
|
Exterior Finish
|
Vinyl Siding |
|
Fireplace Present
|
No |
|
Flooring Type
|
Carpeted, Tile, Vinyl Plank |
|
Foundation Type
|
Poured Concrete |
|
Heating Type
|
Forced Air |
|
Size Interior
|
1070 Sqft |
|
Total Finished Area
|
1070 Sqft |
|
Type
|
House |
Parking
|
Concrete
|
|
|
Garage
|
|
|
Heated Garage
|
|
|
Attached Garage
|
1 |
Land
|
Acreage
|
No |
|
Fence Type
|
Fence |
|
Land Amenities
|
Park, Playground, Schools, Shopping |
|
Landscape Features
|
Landscaped |
|
Size Depth
|
35.05 M |
|
Size Frontage
|
10.36 M |
|
Size Irregular
|
3934.00 |
|
Size Total
|
3934 Sqft|0-4,050 Sqft |
|
Size Total Text
|
3934 Sqft|0-4,050 Sqft |
|
Zoning Description
|
R-sl |
Rooms
| Level |
Type |
Length |
Width |
Dimensions |
|
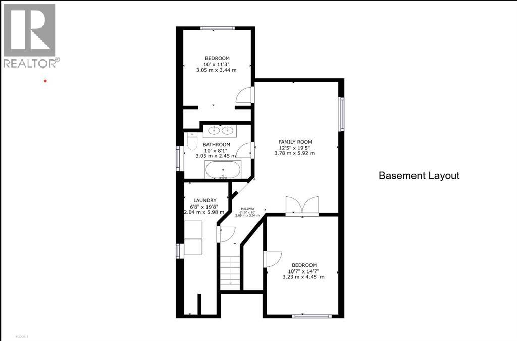
Basement |
Family Room |
|
|
12.42 Ft x 19.42 Ft |
|
Basement |
Bedroom |
|
|
10.00 Ft x 11.25 Ft |
|
Basement |
Bedroom |
|
|
10.58 Ft x 14.58 Ft |
|
Basement |
Laundry Room |
|
|
6.67 Ft x 19.67 Ft |
|
Main Level |
Kitchen |
|
|
12.33 Ft x 10.33 Ft |
|
Main Level |
Dining Room |
|
|
11.25 Ft x 9.83 Ft |
|
Main Level |
Living Room |
|
|
11.25 Ft x 15.17 Ft |
|
Main Level |
Primary Bedroom |
|
|
11.33 Ft x 14.50 Ft |
|
Main Level |
Bedroom |
|
|
9.00 Ft x 12.50 Ft |
|
Main Level |
4pc Bathroom |
|
|
.00 Ft x .00 Ft |
|
Main Level |
4pc Bathroom |
|
|
.00 Ft x .00 Ft |
https://www.realtor.ca/real-estate/29372470/296-tartan-circle-w-lethbridge-west-highlands